物件情報

生野区田島1丁目中古戸建

【 中古 一戸建て 】◆24時間予約内覧会受付中
◆当社は住宅ローンに強い不動産業者です
◆購入を諦めていたお客様も是非お問合せ下さい
◆お問い合わせは06-4255-3477まで

最寄駅所在地面積築年月価格間取り

地下鉄千日前線「北巽」駅 徒歩 17分

大阪市生野区田島1丁目

土地/61.26㎡

建物/91.05㎡

2015年01月 2,690 万円 4 LDK

◆南向きにつき陽当たり・通風良好♪
◆頭金0円より購入可
◆物件の特徴
・2015年1月建築の築浅物件!
・近隣に商業施設多数あり
・3WAYアクセス可♪
・シャッター付き車庫あり
◆見るだけ大歓迎
◆接客対応品質に自信があり
◆ご相談だけでも承ります
◆夜間早朝もお気軽にご連絡ください!
◆無料送迎可
◇―◇―◇―◇―◇―◇―◇―◇―◇―◇―◇
「購入するか分からないけど見るだけ見たい」
「家を見るのが初めてで不安」
「他社の物件もまとめて見てみたい」等
ご購入をご検討中のお客様にとって、
より良い条件でご購入頂く為に精一杯サポート致します!
不動産の事なら何でもお気軽にご相談下さい!

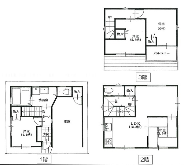
物件写真・間取り

スーパー玉出大池店:徒歩6分(438m)
ローソン生野田島一丁目店:徒歩3分(175m)
ドラッグセガミ巽北店:徒歩10分(792m)
大阪市立生野保育所:徒歩7分(514m)
医療法人同友会共和病院:徒歩6分(475m)
生野大池橋郵便局:徒歩7分(534m)
大阪市立生野図書館:徒歩6分(433m)
りそな銀行生野支店:徒歩5分(328m)

物件概要

物件名

生野区田島1丁目中古戸建

交通機関

地下鉄千日前線「北巽」駅 徒歩 17分

JR大阪環状線「桃谷」駅 徒歩 24分

近鉄奈良線「今里」駅 徒歩 25分

所在地

大阪市生野区田島1丁目

価格

2,690 万円

間取り 4 LDK
土地権利 所有権
土地面積

61.26㎡

私道負担面積14.44㎡
建物面積

91.05㎡

建物構造 木造
階 / 階数

3階建て

築年月

2015年01月

都市計画 市街化区域
用途地域 第一種住居地域
建ぺい率

80%

容積率

200%

駐車場 有 車庫1台分
接道
一方
方向:南側 道路幅員:4m幅(接道幅7.2m)
地目 宅地
現況 居住中
販売戸数

1戸

引渡し 相談
設備2沿線以上利用可 / スーパー 徒歩10分以内 / 南向き / システムキッチン / 浴室乾燥機 / 陽当り良好 / 南側道路面す / 総合病院 徒歩10分以内 / 和室 / トイレ2ヶ所 / 南面バルコニー / 浴室に窓 / 通風良好 / シャッター車庫 / 3階建以上 / 都市ガス
取引態様 媒介
情報登録日2024年09月21日

資料請求・お問い合わせ

物件名生野区田島1丁目中古戸建
お問い合わせ内容
お名前
電話番号
メールアドレス
確認のため同じアドレスをご入力ください。
備考欄ご希望の連絡方法、見学希望日、希望条件、質問などがございましたら、ご記入ください