物件情報

堺市西区浜寺元町3丁中古戸建

【 中古 一戸建て 】◆24時間予約内覧会受付中
◆当社は住宅ローンに強い不動産業者です
◆購入を諦めていたお客様も是非お問合せ下さい
◆お問い合わせは06-4255-3477まで

最寄駅所在地面積築年月価格間取り

阪堺電気軌道阪堺線「船尾」駅 徒歩 13分

堺市西区浜寺元町3丁

土地/184.53㎡

建物/133.07㎡

1987年10月 3,980 万円 3 LDK

◆角地につき、陽当り・通風良好♪
◆頭金0円より購入可
◆物件の特徴
・動線便利な2階建て
・全居室収納あり
・トイレ各階にあり
・コンビニまで徒歩約5分
・空家につき、即内覧可能
◆見るだけ大歓迎
◆接客対応品質に自信があり
◆ご相談だけでも承ります
◆夜間早朝対応可能
◆無料送迎可
◇―◇―◇―◇―◇―◇―◇―◇―◇―◇―◇
「購入するか分からないけど見るだけ見たい」
「家を見るのが初めてで不安」
「他社の物件もまとめて見てみたい」等
ご購入をご検討中のお客様にとって、
より良い条件でご購入頂く為に精一杯サポート致します!
不動産の事なら何でもお気軽にご相談下さい!

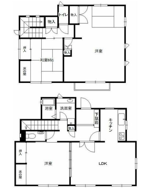
物件写真・間取り

イオンタウン諏訪の森:徒歩17分(1296m)
ベストショップ:徒歩11分(876m)
ローソン堺浜寺元町一丁店:徒歩5分(323m)
ウエルシア堺鳳中町店:徒歩13分(1030m)
コーナンPRO浜寺元町店:徒歩6分(421m)
社会医療法人ペガサスペガサスリハビリテーション病院:徒歩19分(1465m)
堺浜寺昭和郵便局:徒歩5分(335m)
JA堺市浜寺支所:徒歩13分(1008m)

物件概要

物件名

堺市西区浜寺元町3丁中古戸建

交通機関

阪堺電気軌道阪堺線「船尾」駅 徒歩 13分

南海本線「浜寺公園」駅 徒歩 15分

南海本線「諏訪ノ森」駅 徒歩 16分

所在地

堺市西区浜寺元町3丁

価格

3,980 万円

間取り 3 LDK
土地権利 所有権
土地面積

184.53㎡

私道負担面積 無し
建物面積

133.07㎡

建物構造 軽量鉄骨
階 / 階数

2階建

築年月

1987年10月

建ぺい率

50%

容積率

100%

接道
角地
方向:北東側 道路幅員:7.3m幅(接道幅11.4m)
方向:南西側 道路幅員:5.4m幅(接道幅10.9m)
地目 宅地
現況
販売戸数

1戸

引渡し 即時
設備即引渡可 / 2沿線以上利用可 / システムキッチン / 陽当り良好 / 全居室収納 / 前道6m以上 / 角地 / 和室 / トイレ2ヶ所 / 2階建 / 温水洗浄便座 / 浴室に窓 / 通風良好 / 南西向き / IHクッキングヒーター / 都市ガス / シューズインクローク
取引態様 媒介
情報登録日2024年07月28日

資料請求・お問い合わせ

物件名堺市西区浜寺元町3丁中古戸建
お問い合わせ内容
お名前
電話番号
メールアドレス
確認のため同じアドレスをご入力ください。
備考欄ご希望の連絡方法、見学希望日、希望条件、質問などがございましたら、ご記入ください