物件情報

東大阪市横小路町4丁目中古戸建

【 中古 一戸建て 】◆24時間予約内覧会受付中
◆当社は住宅ローンに強い不動産業者です
◆購入を諦めていたお客様も是非お問合せ下さい
◆お問い合わせは06-4255-3477まで

最寄駅所在地面積築年月価格間取り

近鉄奈良線「瓢箪山」駅 徒歩 22分

東大阪市横小路町4丁目

土地/71㎡

建物/109.89㎡

1981年03月 1,400 万円 5~ LDK

◆角地につき、陽当り・通風良好♪
◆頭金0円より購入可
◆物件の特徴
・車庫あり!
・部屋数豊富な6LDK
・子育てしやすい環境
・スーパーまで徒歩約9分
・空家につき、即内覧可能
◆見るだけ大歓迎
◆接客対応品質に自信があり
◆ご相談だけでも承ります
◆夜間早朝対応可能
◆無料送迎可
◇―◇―◇―◇―◇―◇―◇―◇―◇―◇―◇
「購入するか分からないけど見るだけ見たい」
「家を見るのが初めてで不安」
「他社の物件もまとめて見てみたい」等
ご購入をご検討中のお客様にとって、
より良い条件でご購入頂く為に精一杯サポート致します!
不動産の事なら何でもお気軽にご相談下さい!

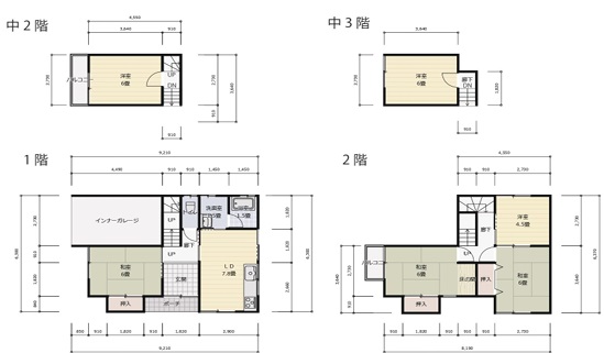
物件写真・間取り

万代六万寺店:徒歩9分(707m)
ローソン東大阪横小路五丁目店:徒歩5分(375m)
サンドラッグ六万寺店:徒歩5分(369m)
ジョーシン外環八尾店:徒歩15分(1185m)
東大阪市立縄手南こども園:徒歩7分(533m)
貴島会貴島病院本院:徒歩12分(954m)
東大阪横小路郵便局:徒歩5分(390m)
関西みらい銀行枚岡支店:徒歩7分(560m)

物件概要

物件名

東大阪市横小路町4丁目中古戸建

交通機関

近鉄奈良線「瓢箪山」駅 徒歩 22分

所在地

東大阪市横小路町4丁目

価格

1,400 万円

間取り 5~ LDK
間取り詳細

6LDK

土地権利 所有権
土地面積

71㎡

私道負担面積 無し
建物面積

109.89㎡

建物構造 木造
階 / 階数

3階建

築年月

1981年03月

都市計画 市街化区域
用途地域 第一種住居地域
建ぺい率

60%

容積率

200%

駐車場
接道
角地
方向:東側 道路幅員:4m幅(接道幅9m)
方向:南側 道路幅員:4m幅(接道幅6.5m)
地目 宅地
現況
販売戸数

1戸

引渡し 相談
設備スーパー 徒歩10分以内 / 南向き / システムキッチン / 陽当り良好 / 南側道路面す / 角地 / 和室 / 2面以上バルコニー / 通風良好 / 3階建以上 / 都市ガス / ビルトインガレージ
取引態様 媒介
情報登録日2024年07月22日

資料請求・お問い合わせ

物件名東大阪市横小路町4丁目中古戸建
お問い合わせ内容
お名前
電話番号
メールアドレス
確認のため同じアドレスをご入力ください。
備考欄ご希望の連絡方法、見学希望日、希望条件、質問などがございましたら、ご記入ください