物件情報

松原市南新町1丁目中古戸建

【 中古 一戸建て 】◆24時間予約内覧会受付中
◆当社は住宅ローンに強い不動産業者です
◆購入を諦めていたお客様も是非お問合せ下さい
◆お問い合わせは06-4255-3477まで

最寄駅所在地面積築年月価格間取り

近鉄南大阪線「布忍」駅 徒歩 4分

松原市南新町1丁目

土地/112.39㎡

建物/102.05㎡

1991年10月 1,888 万円 5~ DK

◆人気の2階建!車庫付!
◆頭金0円より購入可
◆物件の特徴
・2023年6月末リフォーム完了予定!
・駅まで徒歩約4分!
・全居室収納あり!
・トイレ各階にあり!
・スーパーまで徒歩約4分!
◆見るだけ大歓迎
◆接客対応品質に自信があり
◆ご相談だけでも承ります
◆夜間早朝対応可能
◆無料送迎可
◇―◇―◇―◇―◇―◇―◇―◇―◇―◇―◇
「購入するか分からないけど見るだけ見たい」
「家を見るのが初めてで不安」
「他社の物件もまとめて見てみたい」等
ご購入をご検討中のお客様にとって、
より良い条件でご購入頂く為に精一杯サポート致します!
不動産の事なら何でもお気軽にご相談下さい!

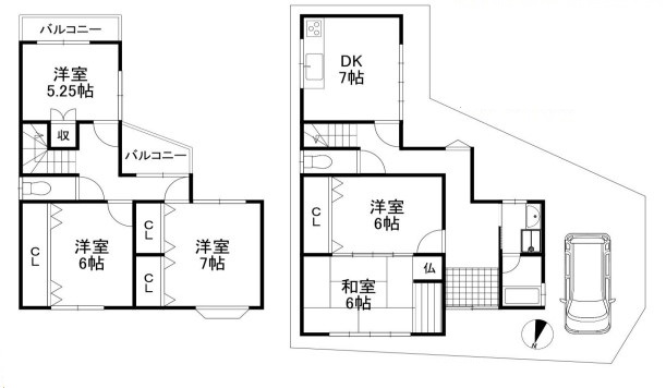
物件写真・間取り

食品館アプロ松原店:徒歩4分(292m)
ローソン松原南新町店:徒歩4分(250m)
スギ薬局松原南新町店:徒歩5分(336m)
コーナンPRO松原市役所前店:徒歩20分(1594m)
社会医療法人阪南医療福祉センター阪南中央病院:徒歩6分(425m)
松原新町郵便局:徒歩3分(238m)
JA大阪中河内布忍支店:徒歩1分(75m)
新町南公園:徒歩10分(744m)

物件概要

物件名

松原市南新町1丁目中古戸建

交通機関

近鉄南大阪線「布忍」駅 徒歩 4分

近鉄南大阪線「高見ノ里」駅 徒歩 12分

近鉄南大阪線「河内天美」駅 徒歩 16分

所在地

松原市南新町1丁目

価格

1,888 万円

間取り 5~ DK
間取り詳細

5DK

土地権利 所有権
土地面積

112.39㎡

私道負担面積 無し
建物面積

102.05㎡

建物構造 木造
階 / 階数

2階建

築年月

1991年10月

都市計画 市街化区域
用途地域 第一種住居地域
建ぺい率

60%

容積率

200%

駐車場
接道
角地
方向:北側 道路幅員:2.9m幅(接道幅9m)
方向:西側 道路幅員:2.5m幅(接道幅6.7m)
地目 宅地
現況
販売戸数

1戸

引渡し 即時
設備即引渡可 / スーパー 徒歩10分以内 / 内装リフォーム / システムキッチン / 全居室収納 / トイレ2ヶ所 / 2階建 / 2面以上バルコニー / 都市ガス
取引態様 媒介
情報登録日2023年07月02日

資料請求・お問い合わせ

物件名松原市南新町1丁目中古戸建
お問い合わせ内容
お名前
電話番号
メールアドレス
確認のため同じアドレスをご入力ください。
備考欄ご希望の連絡方法、見学希望日、希望条件、質問などがございましたら、ご記入ください