物件情報

朝日プラザ千里北C棟

【 中古 マンション 】◆24時間予約内覧会受付中
◆当社は住宅ローンに強い不動産業者です
◆購入を諦めていたお客様も是非お問合せ下さい
◆お問い合わせは06-4255-3477まで

最寄駅所在地面積築年月価格間取り

大阪モノレール彩都線「阪大病院前」駅 徒歩 7分

茨木市美穂ケ丘

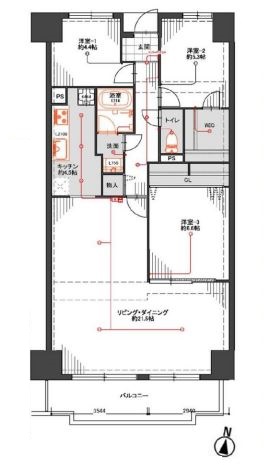
専有面積/90.47㎡

1984年02月 2,080 万円 3 LDK

◆南向きにつき、陽当り・通風良好!
◆頭金0円より購入可
◆物件の特徴
・リフォーム済の為、室内美麗♪
・リビング26帖あり!
・ウォークインクローゼットあり
・即引渡可
・スーパー徒歩10分以内
◆見るだけ大歓迎
◆接客対応品質に自信があり
◆ご相談だけでも承ります
◆夜間早朝対応可能
◆無料送迎可
◇―◇―◇―◇―◇―◇―◇―◇―◇―◇―◇
「購入するか分からないけど見るだけ見たい」
「家を見るのが初めてで不安」
「他社の物件もまとめて見てみたい」等
ご購入をご検討中のお客様にとって、
より良い条件でご購入頂く為に精一杯サポート致します!
不動産の事なら何でもお気軽にご相談下さい!

物件写真・間取り

dios北千里:徒歩21分(1621m)
コーヨー小野原店:徒歩12分(892m)
ファミリーマート茨木美穂ヶ丘店:徒歩1分(38m)
ウエルシア箕面小野原東店:徒歩12分(946m)
箕面市立とよかわみなみ幼稚園:徒歩13分(971m)
大阪大学医学部附属病院:徒歩6分(439m)
吹田阪大病院内郵便局:徒歩6分(438m)
大阪信用金庫箕面支店:徒歩12分(940m)

物件概要

物件名

朝日プラザ千里北C棟

交通機関

大阪モノレール彩都線「阪大病院前」駅 徒歩 7分

大阪モノレール彩都線「豊川」駅 徒歩 17分

大阪モノレール彩都線「公園東口」駅 徒歩 30分

所在地

茨木市美穂ケ丘

価格

2,080 万円

間取り 3 LDK
土地権利 所有権
専有面積

90.47㎡

建物構造 SRC
階 / 階数

4階/12階建

築年月

1984年02月

用途地域 第二種中高層住居専用地域
現況
販売戸数

1戸

管理費

8,860円

修繕積立金

6,280円

引渡し 即時
設備即引渡可 / LDK20畳以上 / スーパー 徒歩10分以内 / 内装リフォーム / 南向き / システムキッチン / 陽当り良好 / シャワー付洗面化粧台 / フローリング張替 / 温水洗浄便座 / TVモニタ付インターホン / 通風良好 / ウォークインクローゼット / エレベーター / 駐輪場 / 食器洗乾燥機
取引態様 媒介
情報登録日2023年01月12日

資料請求・お問い合わせ

物件名朝日プラザ千里北C棟
お問い合わせ内容
お名前
電話番号
メールアドレス
確認のため同じアドレスをご入力ください。
備考欄ご希望の連絡方法、見学希望日、希望条件、質問などがございましたら、ご記入ください