スタッフブログ

2020/06/18

今日は肌寒かったですね😖

本日のおすすめ物件をご紹介します😃
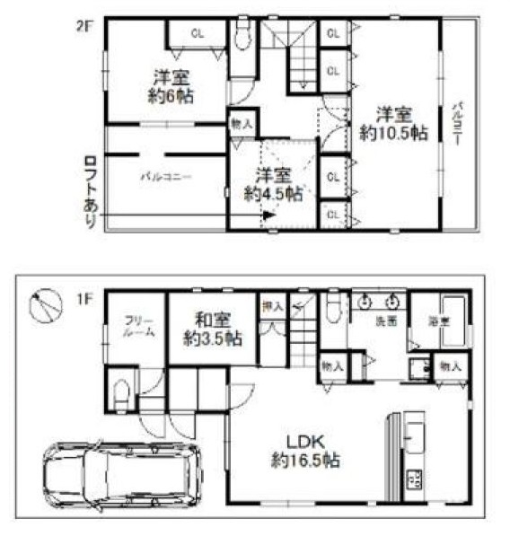
東淀川区大桐にある中古戸建🏡
土地面積、建物面積共に100㎡超😲
2009年6月築で2020年6月リフォーム済み✨
広々4LDKで5LDKに変更可🤩
LDKは15㎡超😊
大型バルコニー有り😁
駐車スペースは普通車1台🚗、小型車1台可🚙
こんな戸建が欲しかった😍
👀見るだけ大歓迎👀
ご連絡お待ちしております📞

PAGE TOP