スタッフブログ

2020/05/07

連休明け1発目は久々😊おすすめ中古マンションをご紹介します❗

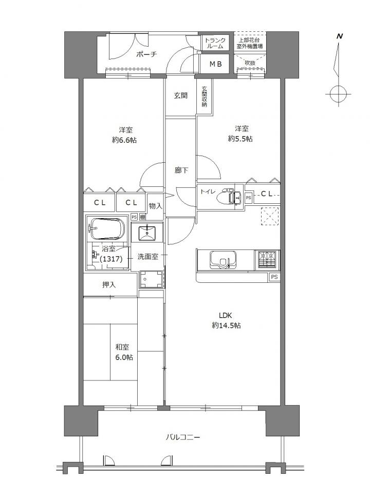
城東区永田2丁目にある平成13年築のマンション🏢
ほんの5日前にリフォーム完了のぴかぴか✨
15階建ての12階部分😁
専有面積70㎡の3LDK😲
トランクルームも付いてる🥰
アウトポール設計で室内スッキリ👍
南向きで陽当たり良好🌞
全室収納付き🤩
今なら駐車場空有🚗
気になった方は見に行ってみよう❗
👀見るだけ大歓迎👀
ご連絡お待ちしております📞

PAGE TOP