スタッフブログ

2020/04/14

🌞清々しい日🌞にふさわしい物件をご紹介します👍

🌞晴れました🌞
やっぱり春🌷は温かい陽射し🌞が気持ちいい😊
こんな清々しい日にふさわしい物件をご紹介します😄
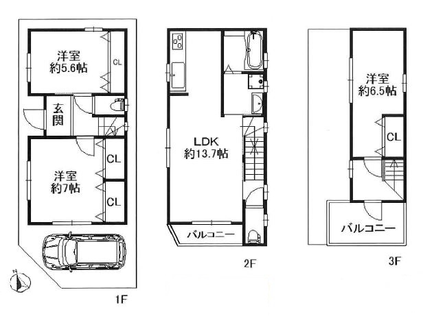
2020年3月に完成❗❗したばっかりの新築戸建🏡
✨旭区大宮⛩にピカピカ✨と建ってます😆
木造🌲3階建ての3LDK😲
建物面積80㎡超の広々お家😍
14帖近いLDKは2面採光で明るい👍
各部屋大きな収納👔🩳👕👖👚付いててお部屋スッキリ😄
駐車スペース有🚙🚗でパパ👨ママ👩安心🧡
駅近🚉複数路線利用可🚆🚇🚋で通勤👨‍💼👩‍💼通学👩‍🎓👨‍🎓も安心😊
こちら3,000万円ちょいで買えちゃう🤩
これは気になりますね😆
👀見るだけ大歓迎👀
ご連絡お待ちしております📞

PAGE TOP