スタッフブログ

2020/03/28

🐌本日のおすすめ物件です🐌

朝雨が止んでいた🌂ので駐車場か🚗らお店🚲まで傘無しできました🙄
大失敗です😭
そんな時はラッキー👍な物件にあやかりましょう😆
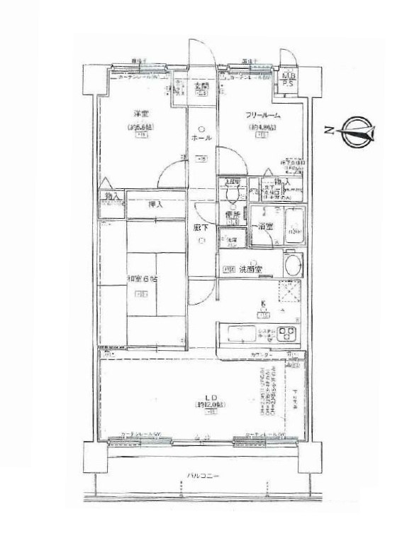
福島区🏝大開にある中古マンション🏢
平成7年7月築の7階建て😲やった❗❗ラッキー😁
専有面積は約70㎡こちらも7😄
1階部分のお部屋で忘れ物も怖くない👍
平成20、23,24、26年にリフォーム入って😀
✨いろいろ新しくなってます✨
複数路線利用可🚄🚇🚋🚊でどこでも行け🚶‍♂️🚶‍♀️るすぐ行ける🏃‍♂️🏃‍♀️
即入居可で嬉しいね😍
こちら2000万円台で買えちゃう🤩
🌸春休み🌷最後にちょっと🤏見に行ってみませんか😄
👀見るだけ大歓迎👀
ご連絡お待ちしております📞

PAGE TOP