スタッフブログ

2020/02/18

✨本日は新築物件をご紹介します✨

都島区大東町に出来たてほやほや✨
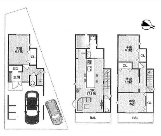
木造3階建の4LDK😍
こちらも建物面積広々105㎡超🤩
全室洋室でもちろんクローゼット有👍
LDKも17帖超で家族でだんらん👨‍👩‍👧‍👦
お車2台駐車可🚗🚙
駅近物件でアクセス最高🚋
東向きのバルコニーが2面あって朝から気持ち良い~🌞
水周りは買いに集めてあるので動線便利😍
お風呂🛁に1階まで行かなくていいって嬉しいよね😆
これも一緒に見に行こう🏃‍♂️🏃‍♀️
👀見るだけ大歓迎👀
ご連絡お待ちしております📞

PAGE TOP