スタッフブログ

2020/01/27

🏡東淀川区大桐ある新築戸建ご紹介🏡

冬⛄らしくないお天気☔が続いていますが
さわやかに行きましょう😊

✨2019年9月に完成❗❗ピカピカです✨
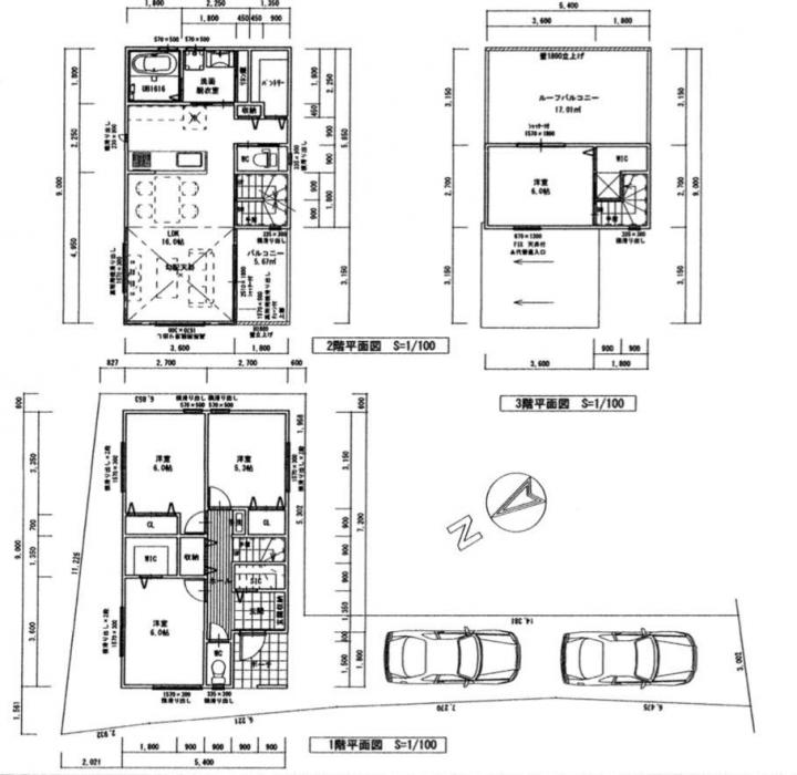
なんと駐車スペース2台分🚙🚗
パパ👨ママ👩嬉しい🧡お兄ちゃん🧑お姉ちゃん👩‍🦰も嬉しい💛
そして収納スペースがスゴイ😲
全室収納有😄でウォークインクローゼット2ヶ所🚶‍♂️🚶‍♀️
パントリー🧂🥫🥦🥡🍘にリネン庫🧻🧼🧴🛏
シューズインクローゼット👞👟👠🥿🥾👢まで付いている❗❗
室内ガラガラですね😆
2階にバルコニー😃3階にはルーフバルコニー😍まであって
ほんと夢のマイホームですよね🤩
土地面積120㎡超🏕建物面積も100㎡超🏠の広々住宅🎉
これが3,000万円台なんてびっくり😲
さあ❗みんなで見に行きましょう🍊
👀見るだけ大歓迎👀
ご連絡お待ちしております📞

PAGE TOP