スタッフブログ

2020/01/19

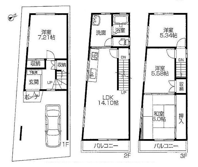
💥阿倍野区王子町にある中古戸建🏡をご紹介します💥

💛鉄骨造3階建ての4LDK🧡
駅近❗❗複数路線利用可🚇🚊🚋で通勤👨👩通学🧑🧒便利😍
駐車スペース🚙もあるのでマイカー通勤もOK👍
14帖越えのLDKでのんびりくつろげる🍻📺📼
南東向きのバルコニーで😄一日中明るーい🌞
✨全件改装済でピカピカ快適✨
現在空家で即入居可🤩
さあ、お引越しです🚛
👀見るだけ大歓迎👀
ご連絡お待ちしております📞

PAGE TOP