スタッフブログ

2019/12/27

🍊今年最後🐗の物件のご紹介&オープンハウスのご案内です🐭

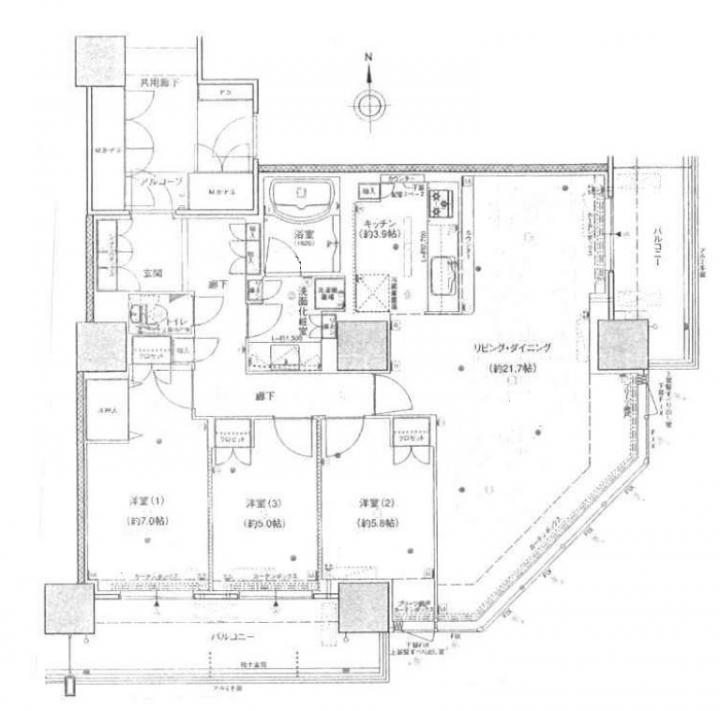
都島区にある中古タワーマンション🏙
なんと38階建ての36階角部屋😍
専有面積97.94㎡の広々空間😮
21.7㎡のLDKでダンスもできそう🕺💃(静かにね☺)
南・東向きの二面バルコニーで一日中明るい🌞
🎍初日の出🌞はお家で見れちゃう😆
✨収納多数でスッキリ綺麗✨
ペットも飼える🦁🐯🐲嬉しい物件です❗❗(規約あり)
2020年2月に大規模リフォーム完成予定😁
出来上がりが楽しみだね🥰
ちょっと気になるかなって人は😃
🎀年明け1月にオープンハウス開催します🎀

🍊開催日  1月11日(土)~13日(祝)
        18日(土)、19日(日)
          25日(土)、26日(日)

🍊開催時間は各日  11時~19時

📞事前にご予約お願い致します。📞

連絡先は 店長 丸石🔘 080-4014-2584 迄 (怖くないので電話してね😆)

👀見るだけ大歓迎👀
ご連絡お待ちしております📞

PAGE TOP