お問い合わせ
会社概要
採用情報
06-4255-3477
営業時間:10:00~19:00
ホーム
エリアから検索
沿線・駅から検索
選ばれる理由
店舗情報
スタッフ
ブログ
2019/12/24
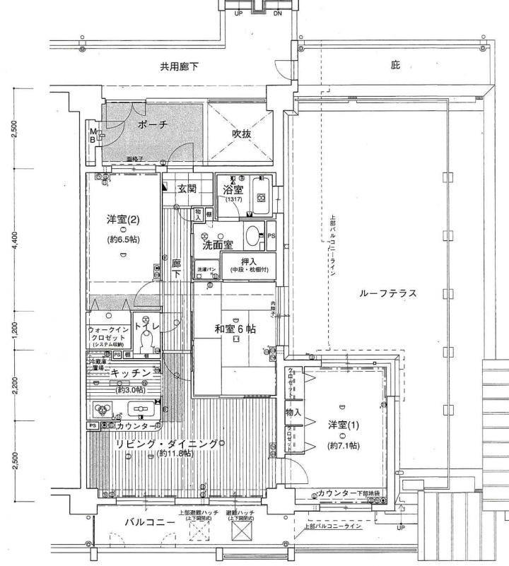
🎄都島区にある中古マンションご紹介🎄
✨
本日のおすすめ物件をご紹介します
✨
🎄
今日はクリスマスイブ
🎄
🎁
🎁
こんなマンションプレゼントしませんか
🎁
🎁
都島区にある中古マンション
🏢
10階建ての6階で角部屋
😄
44㎡のルーフテラス付で使い方自由
😍
淀川沿いで一杯
🍻
飲みながら花火
🎆
を見るのも良いですね
😊
3方向窓有で通風
🌫
良好採光
🌞
良好
ゆとりの3LDKで広々
😁
ウォークインクローゼット有で更に広々
😄
あなたも快適ゆとりの生活しませんか
🧡
❤
👀
見るだけ大歓迎
👀
ご連絡お待ちしております
📞
<<前の記事へ
|
次の記事へ>>
<< スタッフブログ一覧に戻る
PAGE TOP