お問い合わせ
会社概要
採用情報
06-4255-3477
営業時間:10:00~19:00
ホーム
エリアから検索
沿線・駅から検索
選ばれる理由
店舗情報
スタッフ
ブログ
2019/12/22
🎄本日のおすすめ物件をご紹介🎄
✨本日のおすすめ物件をご紹介します✨
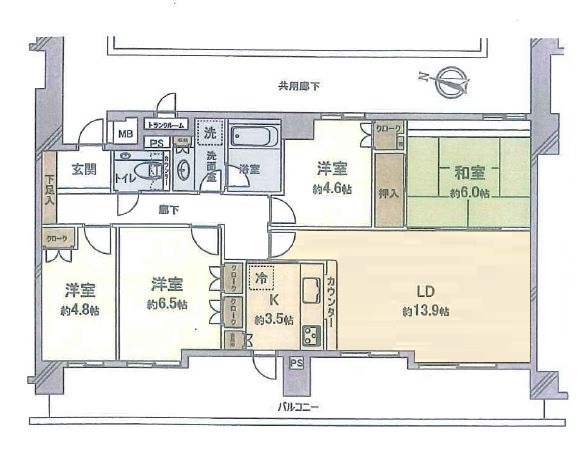
西区新町にある中古マンション🏢
90㎡越えの大きなお部屋🤩
バルコニーは13.6mと長ーい😮広ーい😄
なんと4LDKで寝る場所迷うね🛏
17帖以上もあるLDK🥰
ゆったり暮らせます😊
14階建ての9階で見晴らし🏙陽当り🌞通風🌫良好❗❗
みんなで見に行ってみませんか👨👩👧👦
👀見るだけ大歓迎👀
ご連絡お待ちしております📞
<<前の記事へ
|
次の記事へ>>
<< スタッフブログ一覧に戻る
PAGE TOP