お問い合わせ
会社概要
採用情報
06-4255-3477
営業時間:10:00~19:00
ホーム
エリアから検索
沿線・駅から検索
選ばれる理由
店舗情報
スタッフ
ブログ
2019/12/15
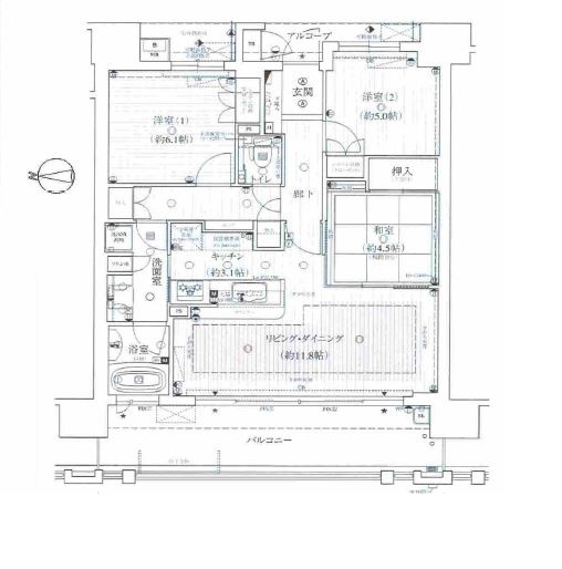
🍊北区の中古マンションご紹介🍊
🎀北区の中古マンションご紹介🎀
12階建ての6階部分🏢
ちょうど真ん中ですね😊
✨平成23年築で綺麗な物件です✨
リビングダイニングに床暖房付❗❗
駅まで5分で3路線利用可🚇🚊🚉
駐車場🚗駐輪場🚲バイク置🛵場あり😄
活動は向きですね🏌️♂️🚴♂️🏇
気になったお電話口へ🎉📠
👀見るだけ大歓迎👀
ご連絡お待ちしております📞
<<前の記事へ
|
次の記事へ>>
<< スタッフブログ一覧に戻る
PAGE TOP