お問い合わせ
会社概要
採用情報
06-4255-3477
営業時間:10:00~19:00
ホーム
エリアから検索
沿線・駅から検索
選ばれる理由
店舗情報
スタッフ
ブログ
2019/12/10
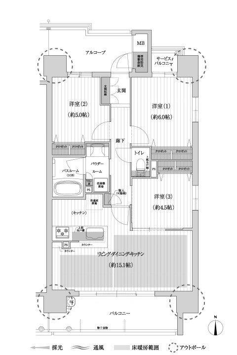
😊浪速区の中古マンションご紹介😄
✨本日のおすすめ物件をご紹介✨
浪速区桜川にある中古マンションで🏢
13階建て最上階の角部屋😍
南向きバルコニーで陽当たり🌞良好通風🌫良好👍
ペット🐶🐱OKで楽しい暮らし😊
床暖房付でみんなでぬくぬくゴロゴロ😵
洋室2部屋和室1部屋で使い方色々😄
みんなで見に行ってみましょう🏃♂️🏃♀️
👀見るだけ大歓迎👀
ご連絡お待ちしております📞
<<前の記事へ
|
次の記事へ>>
<< スタッフブログ一覧に戻る
PAGE TOP