スタッフブログ

2019/12/05

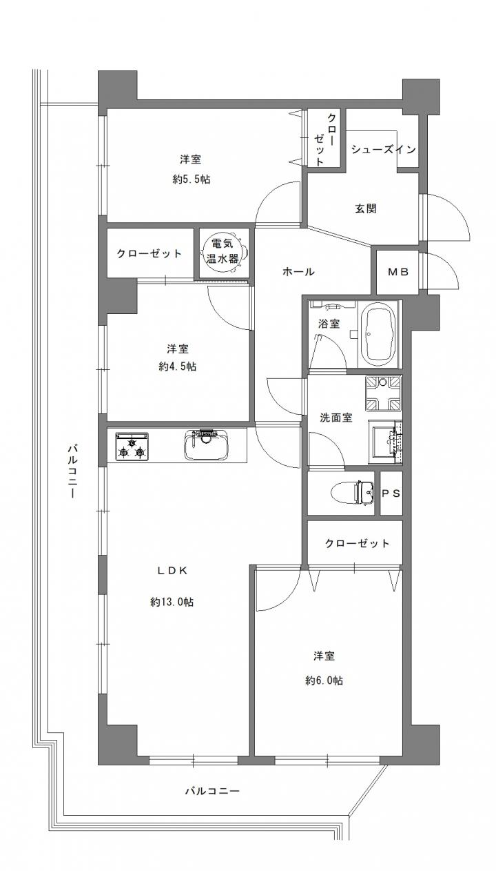
😁北区の中古マンションご紹介😁

さて、本日のおすすめ物件をご紹介します❗
🏙北区天満にある中古マンションで🏢
8階建ての3階にある角部屋❗
下まで降りて忘れ物に気付いたら階段ダッシュでOK👍
2019年12月リノベーション工事完了でピッカピカ✨
南・西の二面バルコニーでこちらもピッカピカ✨
3LDKで収納もたーっぷり😁
シューズインクローゼット付で👠🥿🥾👟👞👢👡
足元お洒落さん必見です❗❗
複数路線利用可能で通勤通学便利🚋🚇🚊🚂
ご家族揃って見に行ってみませんか👨‍👩‍👧‍👦
👀👀見るだけ大歓迎👀👀
ご連絡お待ちしております📞

PAGE TOP