スタッフブログ

2019/11/15

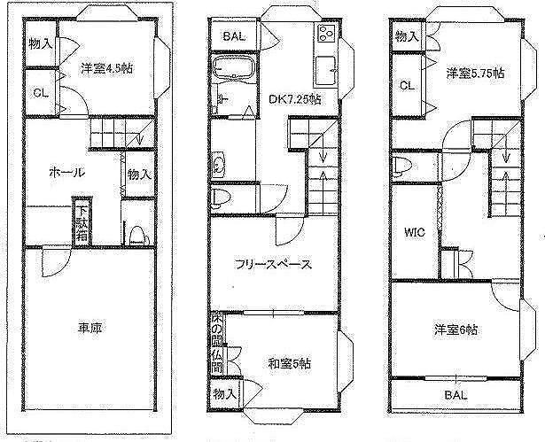
城東区関目の中古戸建ご紹介❗❗

寒くなってきましたね~🧤🧣
11月も半ばですから当然ですが📅
風邪などひいてませんか😷🤧
うちのスーモ君は寒さで元気が有りません🙄
ウォーリー君にもたれています☺
さて、今日の物件をご紹介しましょう✨
城東区関目にある中古戸建で、なんと、チョーご近所さんです🗺🚶‍♂️🚶‍♀️😊
鉄骨造で地震にも強い💪安心だ❤🧡💛
改装済で設備も綺麗✨✨
出窓がたくさんあって明るい🌞
収納スペース充実でかくれんぼができるかも🤣
駅近❗スーパー近❗❗銀行郵便局も近❗❗❗
ぜひハウチューのご近所さんになってくださーい😄

PAGE TOP